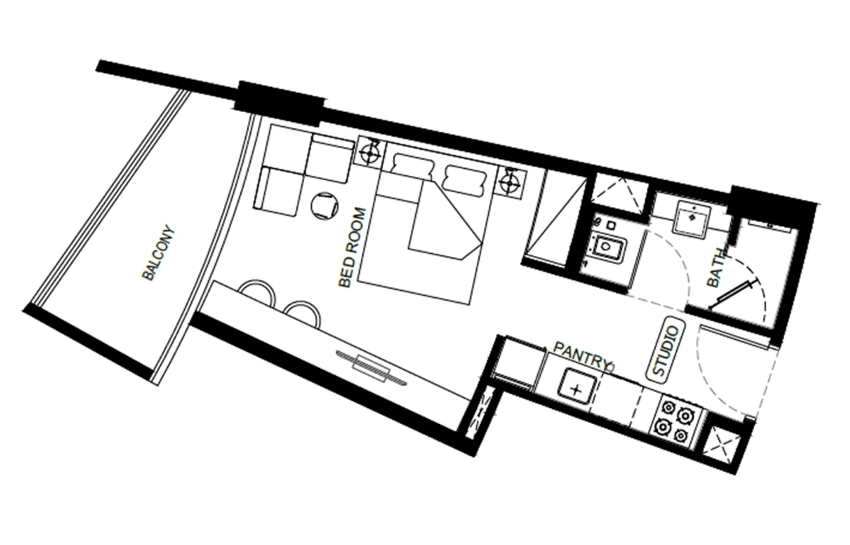
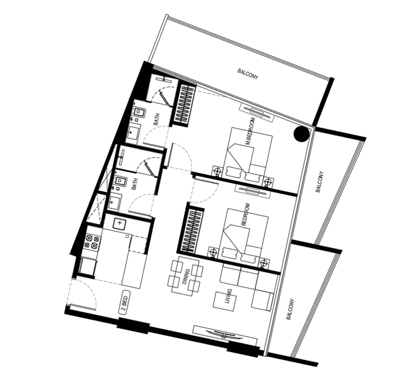
החל מ-799000 AED
הון עצמי נדרש: 159800 AED
Binghatti היא חברת נדל"ן בין המובילות בדובאי, החברה נוסדה בשנת 2008 והיא ידועה בזכות העיצובים האדריכליים הייחודיים, פרויקטים חדשניים למגורים ומסחר ושבירת שיאים במכירות הפרויקטים שלהם.
החברה הזאת בולטת בזכות הפרויקטים והשיתופי פעולה האקסקלוסיביים שלה עם מותגי על כגון: Bugatti, Jacob & Co, Mercedes, שמביאים לפרויקטים נופך יוקרתי וייחודי.
הפרויקטים הבולטים של Binghatti:
Burj Binghatti at Business Bay
Bugatti Residences at Business Bay
Binghatti Trillionaire Residences
Binghatti Gardenia at Jumeirah Village Circle
דובאי הפכה לאחת הערים האטרקטיביות בעולם להשקעות בזכות שילוב של יציבות כלכלית, מיקום אסטרטגי, ותשתיות מתקדמות.
הנה חמש סיבות מרכזיות שהופכות אותה ליעד מועדף על משקיעים:
8-12% תשואה שוטפת על השכרה ו-20% תשואה שנתית ממוצעת בעליית ערך
בדובאי אין מיסים על הנדלן! אין מס שבח , ואין מס רכישה
יחס של דירה אחת ל-10 תושבים (לעומת דירה אחת ל-2.5 תושבים בישראל)
חוק ה-DLD המגן על כספי המשקיעים ומבטיח התקדמות הבנייה
3 שעות טיסה, קהילה ישראלית גדולה וכניסה למדינה ללא ויזה
השוק בדובאי זקוק למשקיעים! בדובאי רק 400,000 יחידות על 4,000,000 תושבים. לצורך השוואה בישראל 4,000,000 יחידות על 10,000,000 תושבים!






2.8MB