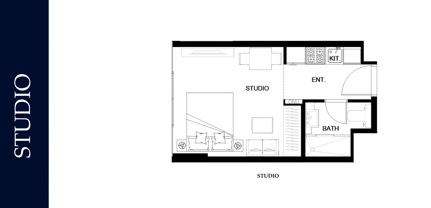
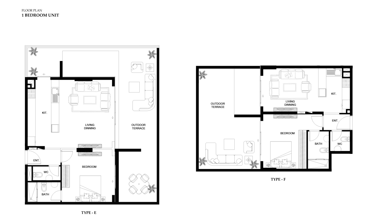
החל מ-564000 AED
הון עצמי נדרש: 56400 AED
דובאי הפכה לאחת הערים האטרקטיביות בעולם להשקעות בזכות שילוב של יציבות כלכלית, מיקום אסטרטגי, ותשתיות מתקדמות.
הנה חמש סיבות מרכזיות שהופכות אותה ליעד מועדף על משקיעים:
8-12% תשואה שוטפת על השכרה ו-20% תשואה שנתית ממוצעת בעליית ערך
בדובאי אין מיסים על הנדלן! אין מס שבח , ואין מס רכישה
יחס של דירה אחת ל-10 תושבים (לעומת דירה אחת ל-2.5 תושבים בישראל)
חוק ה-DLD המגן על כספי המשקיעים ומבטיח התקדמות הבנייה
3 שעות טיסה, קהילה ישראלית גדולה וכניסה למדינה ללא ויזה
השוק בדובאי זקוק למשקיעים! בדובאי רק 400,000 יחידות על 4,000,000 תושבים. לצורך השוואה בישראל 4,000,000 יחידות על 10,000,000 תושבים!






2.8MB